Dựa vào yêu cầu của gia chủ căn hộ chung cư cũ và qua quá trình khảo sát thực tế, phương án thiết kế, thi công được chọn là cải tạo theo hướng tối giản nhất có thể từ vật liệu, màu sắc… nhằm tiết kiệm tối đa chi phí.
Mặt bằng hiện trạng căn hộ chung cư cũ với tình trạng thấm chân tường, sàn và trần đã xuống cấp sau 6 năm sử dụng. Ảnh: Cao Hoà
Gian bếp tối đi kèm với nền gỗ bếp không thông nhất với nền sàn gian ngoài khiến không gian bếp trông ẩm thấp và “lạc quẻ”. Ảnh: Cao Hoà
Gian bếp của căn hộ chung cư cũ sau cải tạo đã “khoác lên một chiếc áo mới”. Ảnh: Cao Hoà
Nhìn tổng thể, khu bếp căn hộ chung cư cũ đã lát gạch hoa trắng khiến khu bếp sáng bừng, cùng với tủ bếp mới thiết kế theo phong cách hiện đại đã khiến cả khu bếp trở nên hòa quyện và ấm áp hơn. Ảnh: Cao Hoà
Không gian đặt bàn ăn không quá to, chỉ vừa vặn đáp ứng đủ nhu cầu sinh hoạt của gia chủ trẻ. Nội thất căn hộ chung cư cũ đã “lột xác” đến khó nhận ra. Ảnh: Cao Hoà
Gia chủ đã chọn bàn ăn tối giản, mảnh để không gian không bị “ngợp”, bộ bàn ăn cùng tone màu với gỗ dán tường nên cảm thấy hài hoà. Ảnh: Cao Hoà
Màu gỗ sáng của nền nhà, bàn ăn… kết hợp màu trắng với những hình khối vuông vắn khiến không gian trở nên sáng hơn. Ảnh: Cao Hoà
Thiết kế màu gỗ đơn giản mang lại cảm giác dễ chịu, nhẹ nhàng. Ảnh: Cao Hòa
Lối ra vào căn hộ chung cư cũ đã được lát sàn gạch hoa, có chỗ ngồi thay giày dép, tách biệt với không gian và sàn gỗ nâu đậm phía bên trong nhà. Ảnh: Cao Hoà
Phòng khách thông liền với bàn ăn nhưng trải 1 thảm lông ở giữa khiến không gian phòng khách được tách biệt rõ ràng. Ảnh: Cao Hoà
Đây là nơi gia đình tụ tập, trò chuyện đầm ấm mỗi ngày. Ảnh: Cao Hoà
Phòng ngủ bố trí giường ngủ liền tủ. Tone màu chủ đạo của cả căn phòng là nâu sáng và trắng. Đây là điểm cộng cho 1 căn phòng ngủ nhỏ nhưng vẫn muốn tràn ngập ánh sáng. Ảnh: Cao Hoà
Thiết kế tủ và giường liền nhau giúp không gian tối ưu được diện tích. Ảnh: Cao Hoà
Phòng ngủ thứ hai được đặt sát cửa sổ khiến không gian trở nên thoáng đãng. Ảnh: Cao Hoà
Thời gian thi công cải tạo căn hộ khoảng 40 ngày, chi phí 250 triệu đồng.
Đây là mức ngân sách khá sát với yêu cầu ban đầu của gia chủ, khi giới hạn tổng chi phí cải tạo chỉ khoảng 200 triệu đồng.
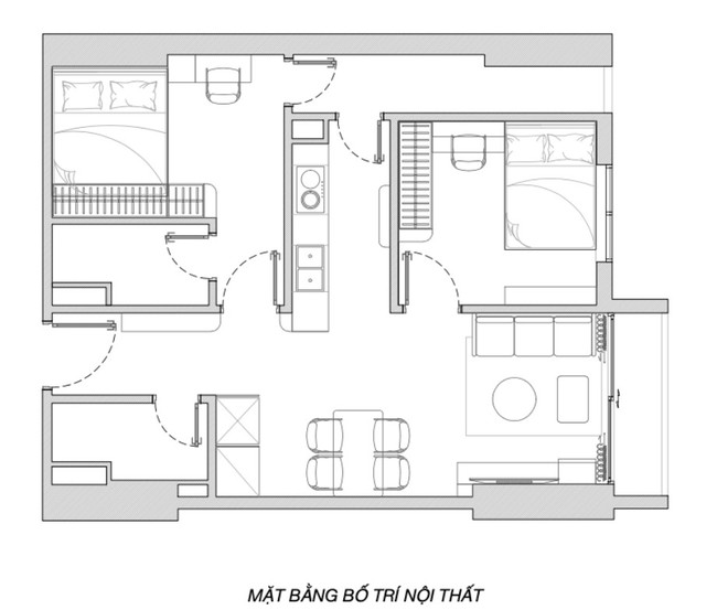
Mặt bằng nội thất của căn hộ chung cư cũ được đầu tư 250 triệu đồng để tân trang. Ảnh: Cao Hòa

















