Câu hỏi của Bạn đọc
Tôi đang có kế hoạch xây nhà mới cho gia đình 2 vợ chồng, 2 con đã lớn. Mảnh đất dạng ống có kích thước 4x18m. Chúng tôi chỉ cần nhà thiết kế giản dị nhưng phải có sân trước, sân sau cho thoáng đãng. Trên tầng 3 có sân thượng bố trí bàn ghế để có thể ăn uống ngoài trời. (Tùng).
Chuyên gia Trả lời
Khi xây nhà, nhiều gia đình thích tận dụng tối đa khu đất để làm các phòng thật rộng. Trong khi đó, anh Tùng sẵn sàng giảm diện tích phòng để dành cho các không gian ngoài trời, giúp cho nhà nhiều ánh sáng, gió mát hơn.

Ở tầng một, chủ nhà có thể lùi vào 3m ở phía trước để làm sân rộng 12 m2 rồi mới tới garage. Phía sau có khoảng sân rộng 4 m2.
Trừ các khoảng thoáng trước và sau nhà, diện tích xây dựng còn 56 m2. Ở tầng một là không gian sinh hoạt chung, tầng 2 có 2 phòng ngủ. Gia chủ yêu cầu có WC trong mỗi phòng.
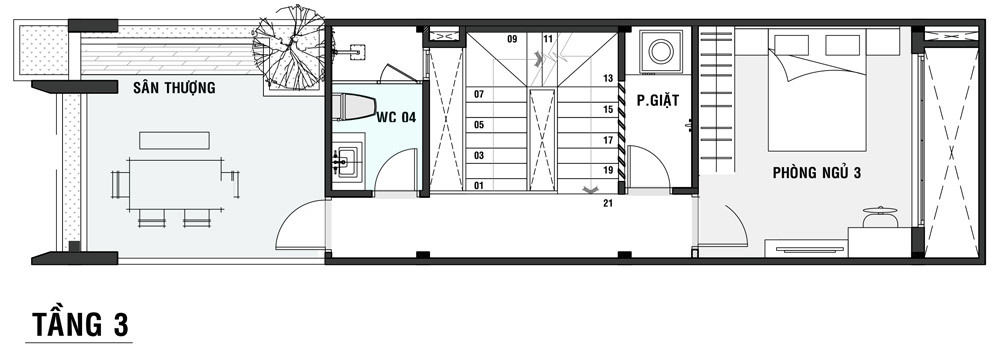
Tầng 3 có một phòng ngủ nhỏ, WC và khoảng sân thượng rộng để làm chỗ tụ tập ngoài trời cho gia đình.
Nhà nằm gần đường nhưng ở trong khu dân cư yên tĩnh và an ninh tương đối tốt. Bởi vậy, gia chủ có thể thiết kế ban công và sân thượng rộng mở, không phải che chắn kỹ.
Khu vực để xe hơi được cách biệt với nơi ở nhờ sự chênh lệch độ cao sàn nhà. Tủ giày cũng được bố trí ở đây để đảm bảo sạch sẽ hoàn toàn cho phòng khách.
Phòng khách sử dụng tông màu be, nâu nhạt với các chi tiết trang trí nhẹ nhàng như đèn chùm, tranh đen trắng.
Ở phía tường bên kia là một mảng màu đối lập với bức tranh mang phong cách ấn tượng hay gỗ ốp màu nâu sẫm. Chỗ treo tivi, bày đồ trang trí được thiết kế gọn, không cản lối lưu thông từ cổng ra bếp, sân sau và lên tầng.
Khu vực gần cầu thang có thể bố trí WC kèm theo khoảng vườn nhỏ. Ở đây thiếu ánh sáng, bởi vậy gia chủ chỉ nên rải sỏi để tạo cảm giác gần gũi với thiên nhiên, có thể đặt một hai chậu cây giả.
Một khoảng sân bé phía sau nhưng đem lại hiệu quả lớn khi phòng ăn có thêm góc nhìn ra bên ngoài, đón nhận một phần ánh sáng tự nhiên. Anh Tùng có thể bố trí bồn sát tường trồng cây tạo cảm giác xanh mát.
Các phòng ngủ bị hạn chế diện tích nên chủ nhà cân nhắc nếu muốn kê thêm bàn làm việc. Anh chị có thể lựa chọn các kiểu bàn ghế xếp gọn sau khi dùng.
Cả hai phòng ngủ ở tầng 2 đều có WC trong phòng để đảm bảo sự độc lập, riêng tư tối đa.
Phòng ngủ của các con có thể thoải mái mở cửa ra sân sau.
Khu vực sân thượng sẽ trở thành không gian sinh hoạt chung ngoài trời thú vị cho gia đình với diện tích rộng rãi, có nhiều cây xanh bao quanh.
An Yên
Ảnh 3D: Cát Mộc
Nguồn & SEO Credits: VNExpress