Hiểu rõ về kích thước thang máy gia đình là yếu tố quan trọng giúp gia chủ lựa chọn sản phẩm phù hợp với nhu cầu sử dụng và điều kiện xây dựng của công trình. Bài viết này sẽ phân tích chi tiết các thông số kỹ thuật cần thiết, giúp bạn đưa ra quyết định tối ưu khi lắp đặt thang máy cho gia đình.
Khái niệm cơ bản về kích thước thang máy
Kích thước thang máy bao gồm các thông số về hố thang (giếng thang), diện tích cabin và các thông số khác như chiều rộng, chiều sâu và chiều cao. Những con số này quyết định không gian cần thiết để lắp đặt thang máy trong ngôi nhà của bạn.
Các tiêu chuẩn Kích thước thang máy gia đình

Thang máy gia đình thường được lắp đặt trong các biệt thự, chung cư mini và khách sạn quy mô nhỏ. Theo tiêu chuẩn thông thường, kích thước hố thang sẽ là 1500mm x 1500mm, với cửa mở rộng 700mm và cabin có kích thước: chiều rộng 800mm x chiều sâu 1100mm x chiều cao 21500mm.
Tuy nhiên, điều quan trọng cần lưu ý là kích thước cabin sẽ thay đổi tùy theo mức trọng tải của thang máy. Vì vậy, việc lựa chọn hố thang phù hợp cần được cân nhắc kỹ lưỡng dựa trên thiết kế công trình và mục đích sử dụng.
Xác định kích thước thang máy gia đình theo tải trọng
Mỗi hãng sản xuất sẽ có những kích thước thang máy gia đình khác nhau ứng với từng mức tải trọng, tuy nhiên, các thông số vẫn đảm bảo không bị chênh lệch quá nhiều, tuân thủ đúng quy định và tiêu chuẩn xây dựng, thiết kế loại hình sản phẩm này.
Kích thước của thang máy với mức tải trọng phù hợp với loại hình căn nhà gồm 200kg, 250kg, 300kg, 350k, 450kg và 500kg.
Kích thước của thang máy gia đình tải trọng 200kg
Đây là lựa chọn lý tưởng cho những ngôi nhà có diện tích hạn chế, với khả năng phục vụ 1-3 người/lượt.
- Diện tích hố thang: 1300mm (rộng) x 1100mm (sâu)
- Diện tích cabin: 900mm (rộng) x 600mm (sâu) x 2200mm (cao)
- Diện tích cửa: 600mm (rộng) x 2100mm (cao) – Loại cánh 2 cửa mở về hai phía (CO)
Với loại thang này, phương án xây tường 100mm x 100mm và cột góc 300mm x 100mm là giải pháp hợp lý, tối ưu không gian và chi phí xây dựng.
Kích thước thang máy gia đình nhỏ nhất
Kích thước thang máy gia đình tải trọng 250kg
Thang máy 250kg thích hợp cho các ngôi nhà có diện tích vừa phải. Tùy vào quy hoạch đất, có thể lựa chọn thiết kế đối trọng sau hoặc đối trọng hông.
Thiết kế đối trọng sau:
- Diện tích hố thang: 1400mm (rộng) x 1300mm (sâu)
- Diện tích cabin: 1000mm (rộng) x 800mm (sâu) x 2200mm (cao)
- Diện tích cửa: 650mm (rộng) x 2100mm (cao) – Loại cửa CO
Thiết kế đối trọng hông:
- Diện tích hố thang: 1600mm (rộng) x 1100mm (sâu)
- Diện tích cabin: 1000mm (rộng) x 800mm (sâu) x 2200mm (cao)
- Diện tích cửa: 750mm (rộng) x 2100mm (cao) – Loại cửa CO
Ưu điểm của thiết kế đối trọng hông là kích thước cửa được mở rộng hơn, tạo thuận lợi cho việc ra vào thang máy.
Kích thước thang máy gia đình 250kg đối trọng hông
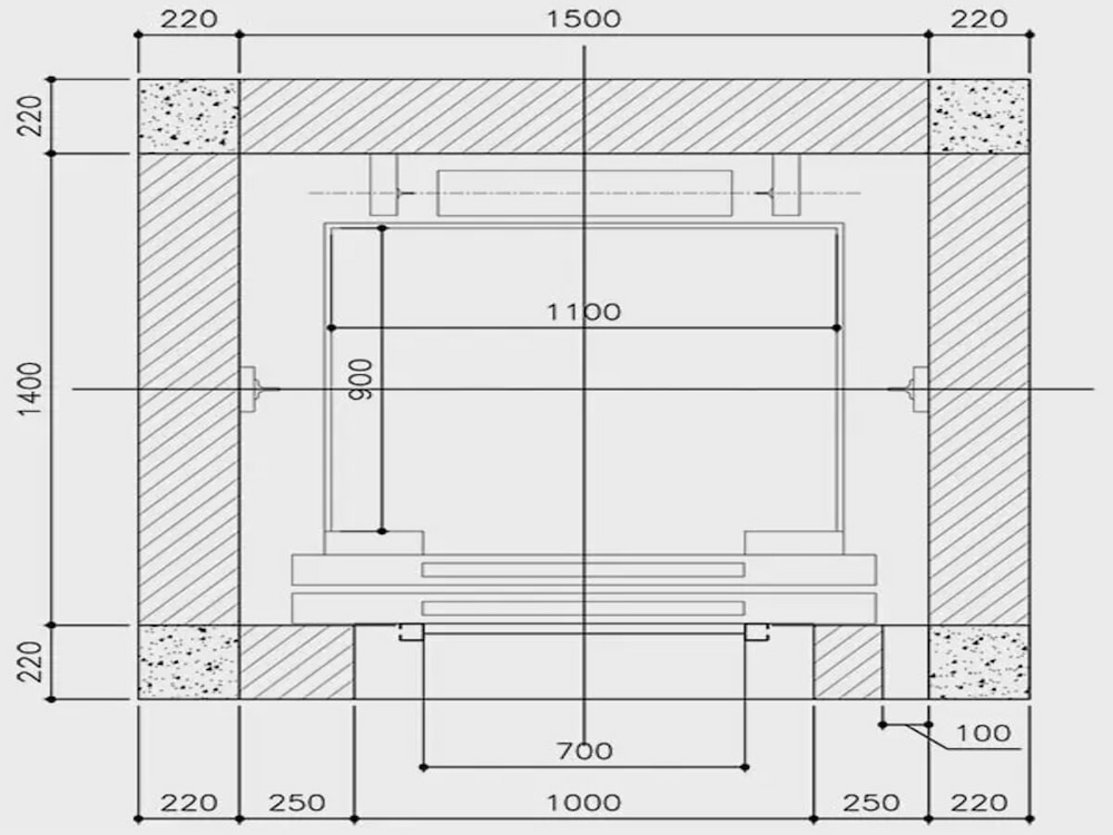
Kích thước thang máy gia đình tải trọng 300kg
Thang máy 300kg là lựa chọn phổ biến trong cả dòng thang máy nhập khẩu và sản xuất trong nước. Phù hợp với diện tích nhà từ 50-60m², lý tưởng cho gia đình có 4-5 thành viên.
Để tối ưu việc thi công, nên xây tường xung quanh 220mm và cột vuông góc 220mm x 220mm. Thang máy này cũng có hai phương án bố trí đối trọng:
Thiết kế đối trọng sau:
- Diện tích hố thang: 1500mm (rộng) x 1400mm (sâu)
- Diện tích cabin: 1100mm (rộng) x 900mm (sâu) x 2200mm (cao)
- Diện tích cửa: 700mm (rộng) x 2100mm (cao) – Loại cửa CO
Thiết kế đối trọng hông:
- Diện tích hố thang: 1700mm (rộng) x 1200mm (sâu)
- Diện tích cabin: 1100mm (rộng) x 900mm (sâu) x 2200mm (cao)
- Diện tích cửa: 800mm (rộng) x 2100mm (cao) – Loại cửa CO
Kích thước thang máy gia đình 300kg đối trọng sau
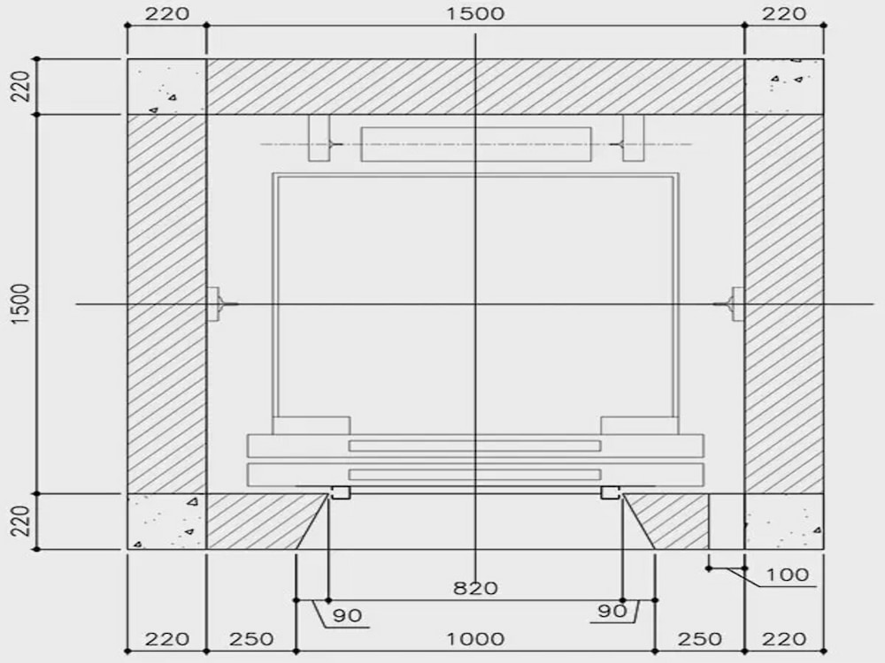
Kích thước thang máy gia đình tải trọng 350kg
Đây là loại thang máy được sử dụng nhiều nhất, không chỉ cho nhà ở gia đình mà còn cho cả chung cư mini và tòa nhà cho thuê có diện tích nhỏ.
- Diện tích hố thang: 1500mm (rộng) x 1500mm (sâu)
- Diện tích cabin: 1100mm (rộng) x 1000mm (sâu) x 2200mm (cao)
- Diện tích cửa: 700mm (rộng) x 2100mm (cao)
Phương án đối trọng sau được đánh giá là phù hợp nhất cho loại thang này. So với đối trọng hông, thiết kế này cho phép dễ dàng thay đổi tải trọng nếu cần.
Đặc biệt, khi kết hợp với khung vỏ thép, thang máy 350kg có thể giúp tiết kiệm từ 15-17cm mỗi chiều, tối ưu hóa không gian xây dựng – một ưu điểm quan trọng cho các công trình có diện tích hạn chế.
Kích thước thang máy gia đình 350kg
Kích thước thang máy gia đình tải trọng 450kg
Thang máy 450kg thường được sử dụng cho các tòa nhà văn phòng, chung cư mini, khách sạn quy mô nhỏ, với khả năng vận chuyển 6-7 người/lượt. Tuy nhiên, loại thang này cũng phù hợp cho nhà ở gia đình trong các trường hợp:
- Diện tích nhà từ 80-100m²
- Nhà ở kết hợp cho thuê
- Cần vận chuyển đồ cồng kềnh thường xuyên hoặc có người khuyết tật sử dụng xe lăn
Thang máy 450kg có nhiều phương án thiết kế:
Thiết kế đối trọng sau – hố rộng:
- Diện tích hố thang: 1800mm (rộng) x 1500mm (sâu)
- Diện tích cabin: 1400mm (rộng) x 1000mm (sâu) x 2200mm (cao)
- Diện tích cửa: 800mm (rộng) x 2100mm (cao)
Thiết kế đối trọng sau – hố hẹp: Phương án này thích hợp với công trình có chiều rộng hố hạn chế nhưng chiều sâu thoải mái hơn.
- Diện tích hố thang: 1500mm (rộng) x 1800mm (sâu)
- Diện tích cabin: 1100mm (rộng) x 1300mm (sâu) x 2200mm (cao)
- Diện tích cửa: 700mm (rộng) x 2100mm (cao)
Thiết kế đối trọng hông:
- Diện tích hố thang: 2000mm (rộng) x 1300mm (sâu)
- Diện tích cabin: 1400mm (rộng) x 1000mm (sâu) x 2200mm (cao)
- Diện tích cửa: 800mm (rộng) x 2100mm (cao)

Kích thước Thang máy tải trọng 500kg – Giải pháp cao cấp
Đáp ứng nhu cầu vận chuyển lớn với khả năng chở đến 7 người/lượt:
- Diện tích hố thang: 1800mm (rộng) x 1600mm (sâu)
- Diện tích cabin: 1400mm (rộng) x 1000mm (sâu) x 2200mm (cao)
- Diện tích cửa: 800mm (rộng) x 2100mm (cao)
Thông số tiêu chuẩn của hố pit thang máy gia đình
Nếu bạn sử dụng thang máy có hố pit, thì nên tham khảo thông tin chung về hố pit thang máy gia đình:
Hố pit là phần quan trọng trong hệ thống thang máy, cần đảm bảo các tiêu chuẩn sau:
- Chiều sâu hố pit: Tối thiểu 700mm, cần chống thấm nước trước khi khoan 100mm
- Tình trạng: Luôn đảm bảo khô ráo
- Hoàn thiện: Sau khi lắp đặt thang máy, cần hoàn thiện phần sàn và tường xung quanh cửa
- Kết cấu: Cần xây dựng hệ thống đà linteau ba mặt hố tại các khoảng giữa tầng
- Cửa: Mỗi cửa cần làm đà lăng tô và đà kiềng ba mặt bên vách hố
- Thiết kế: Cần có cầu thang xuống pit
Các thông số tiêu chuẩn khác:
-
- Chiều sâu tiêu chuẩn: 1000mm (tối thiểu 550mm với mức tải trọng 200-350kg và 800mm với tải trọng 450kg)
- Chiều cao đà linteau: 2300mm
- Chiều cao OH (từ sàn cửa thang máy đến móc treo hố thang): 3500mm với phòng có thang và 4000mm với phòng không thang
- Chiều cao phòng kỹ thuật: 1500mm
Hiện nay, với nhiều công nghệ an toàn hiện đại, thì loại thang máy gia đình không cần hố pit được sử dụng khá phổ biến nhờ sự tiện lợi và tiết kiệm:
Thang máy không hố pit là gì? Ưu nhược điểm và khi nào nên dùng
Lời khuyên khi lựa chọn kích thước thang máy gia đình
Kích thước lọt lòng của thang máy là yếu tố cực kỳ quan trọng trong quá trình thiết kế và lắp đặt. Khi lựa chọn, cần đặc biệt chú ý:
- Đánh giá kỹ nhu cầu sử dụng của gia đình: số người sử dụng, tần suất, mục đích…
- Xem xét diện tích và cấu trúc nhà để chọn loại thang phù hợp
- Tham khảo ý kiến chuyên gia để lựa chọn phương án thi công tối ưu
- Lưu ý rằng mỗi nhà sản xuất có thể có những tiêu chuẩn kích thước khác nhau
Hiểu rõ về kích thước thang máy gia đình sẽ giúp bạn đưa ra quyết định sáng suốt, tiết kiệm chi phí và đảm bảo an toàn, thuận tiện khi sử dụng. Hãy dành thời gian tìm hiểu kỹ các thông số liên quan để lựa chọn loại thang máy phù hợp nhất với nhu cầu và điều kiện của gia đình bạn.
Lưu ý: Thông tin trong bài viết chỉ mang tính tham khảo, bạn nên tham khảo trực tiếp kiến trúc sư và chuyên gia xây dựng có kinh nghiệm để lựa chọn hợp lý.


